Building regulation job
With this project an existing building was being
reconfigured with all internal walls and room sizes
amending, to suit two companies situated inside.
Liaising directly with the customers on preferences of
options our Draughtsman progressed a number of drawings
for build construction, including communication with a
mezzanine steel manufacturer for upper floor support.
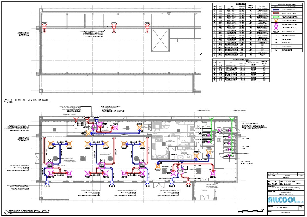
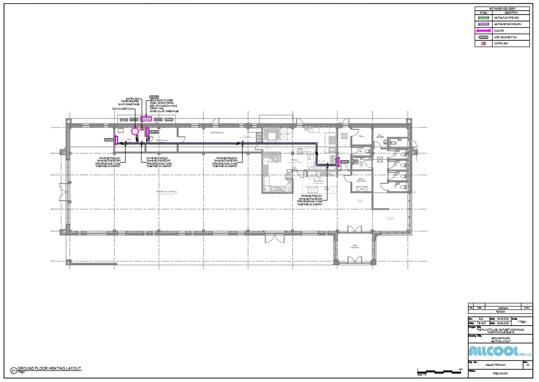
Drawings were provided and submitted for approval prior to
latter stages of detail, these included lighting layouts,
HVAC drawings and steel support drawings for the upper
floor. Should you have a project where numerous discipline
drawings are required for building construction and
reconfiguration please get in touch by email or phone
today.
