Our Services
We provide professional all CAD services for precise modeling, product visualization, and technical drawings. Our solutions are ideal for manufacturing, prototyping, and design visualization, ensuring high-quality results tailored to your needs.
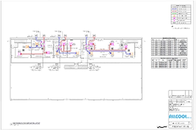
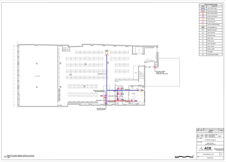
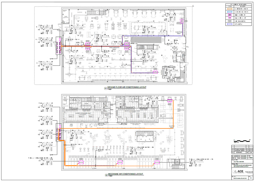
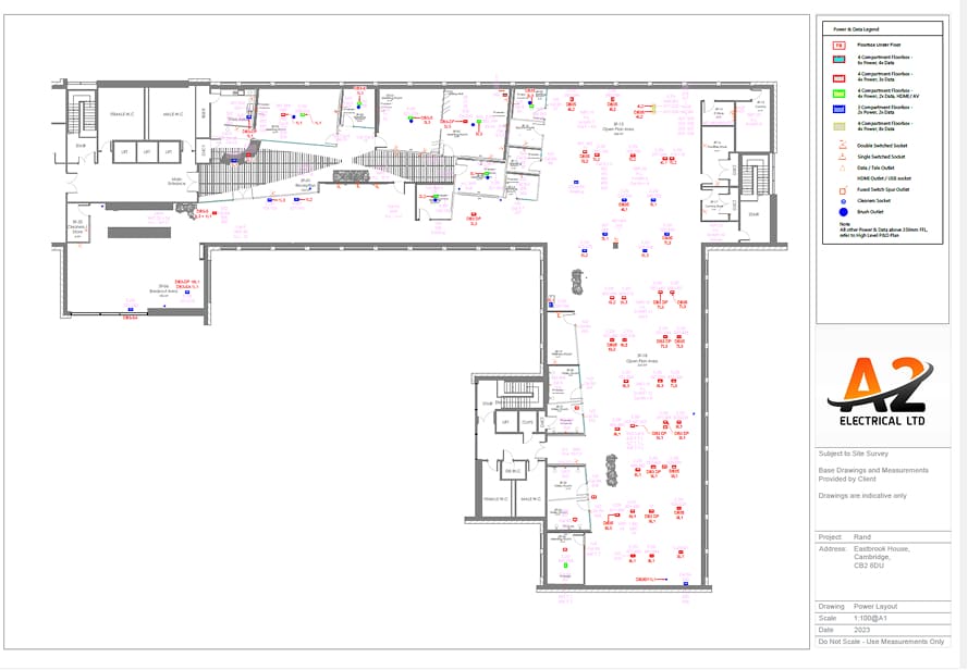
2D services
The main standard for shop floor and manufacturing are 2D
CAD Drawings to read against when creating parts for
products.
As 3D Software has progressed it’s now quicker and more
efficient to project a 3D Modelled part onto a drawing
template to create Front, Side, Top and Isometric views.
Below is a list of our Services included of 2D CAD Drawings:
List of our services
- 1. Mechanical Drawing Layouts
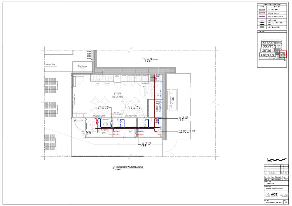
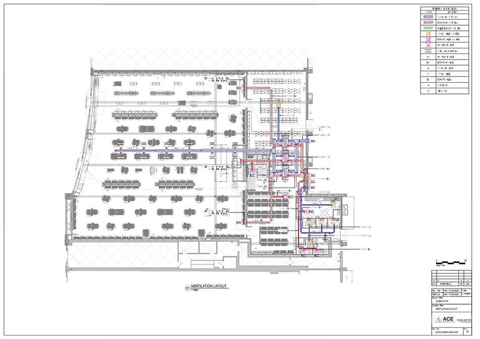
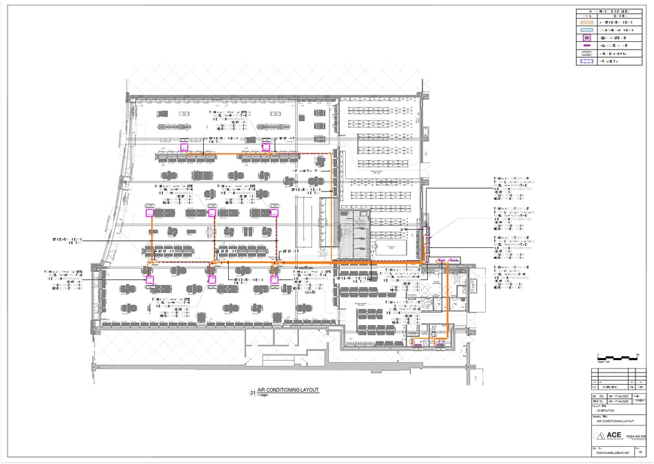
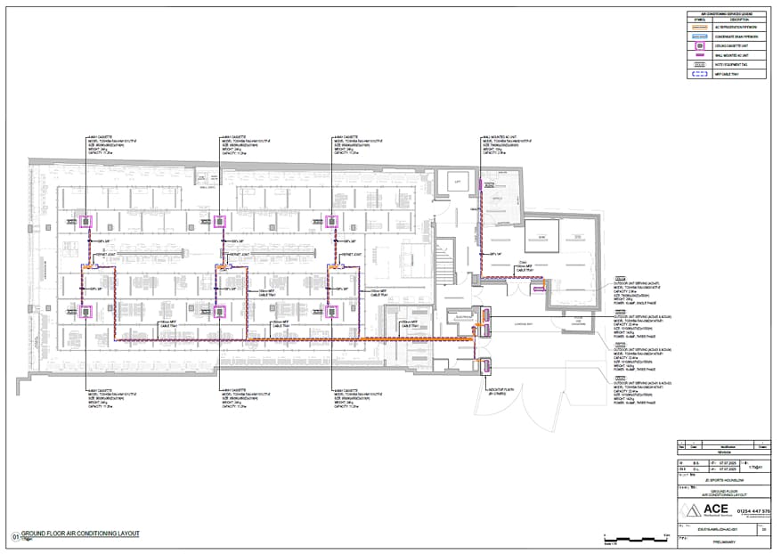
- 2. HVAC Drawing Layouts
- 3. Electrical Drawing Layouts
- 4. As Fitted Drawing Layouts
- 5. Planning Permission Drawings
- 6. Site Plan and Location Plan Drawings
- 7. Change of Use Drawings
- 8. Building Regulation Drawings
- 9. Capturing Existing Building Layouts
- 10. 3 No Revisions Included throughout process
